房源特点
The Fairmount公寓经过全新升级改造,每个细节都经过精心设计。所有户型均配备安全门禁、室内洗衣机、分体空调、新地板、石英台面、不锈钢家电、现代灯具、洗碗机及车库或车棚停车位。部分房源还设有私人阳台或露台,可欣赏迷人景观。房间类型
-
1A
面积:672 sq. ft.
户型: 一室一卫
$ 3,000/月起
-
2A1
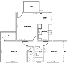
面积:888 sq. ft.
户型: 二室二卫
$ 4,500/月起
-
2A
面积:775 sq. ft.
户型: 二室二卫
$ 5,000/月起
房源详情
公寓位置优越,步行即可到达Shops on Lake的餐饮与购物区,短途即可前往Playhouse District、The Paseo及Old Town Pasadena。临近210与110高速及地铁金线,通勤出行十分便捷。The Fairmount将现代舒适与Pasadena生活完美融合,为你打造理想的居家体验。
配套设施
公共洗衣房
厨房
冰箱
微波炉
家具
Wi-Fi
健身房
学习室
门禁系统
娱乐中心
有线电视
烘干机
烤箱
床
书桌
可养宠物
自行车管理
收费说明
优惠说明
| 申请费 | $30 |
|
提交公寓租赁申请时需支付的审核费用,不退还 |
|
规定与政策
关于公寓商
地图
- 学校









